| Art. No. | Material | Supply size | H profile (mm) | Function | Weight (Kg/m) |
|---|---|---|---|---|---|
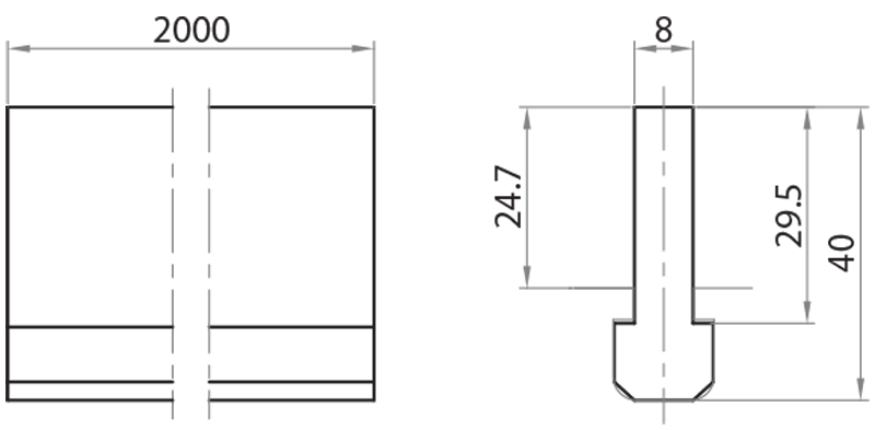
| 700040 | 500.000 molecules density polyzene | 2 m bars | 40 | for realization of groove sliding systems | 0,350 |
| Art. No. | Material | Supply size | H profile (mm) | Function | Weight (Kg/m) |
|---|---|---|---|---|---|
| 700040 | 500.000 molecules density polyzene | 2 m bars | 40 | for realization of groove sliding systems | 0,350 |


